コンドミニアムヴェルジュ六本松 仲介手数料無料ならベストバランス / 5階 1K 60,000円 24.36m2 築20年 賃貸空室情報|仲介手数料無料!福岡で賃貸物件のお部屋探しならベストバランス

SUUMO・ホームズなどに掲載しているお部屋も初期費用安くご紹介可能です!お気軽にお問合せ下さいませ♪

登録・更新日:2024/11/23

 

コンドミニアムヴェルジュ六本松 

  • 敷金0
ベストバランスならSUUMOやホームズよりも初期費用が安く賃貸契約できます!まずはお見積もりの問合わせからしませんか?
賃料 6万円
管理・共益費
0円
敷金 ・ 礼金 0ヶ月  ・  1ヶ月 間取り 1K
主要アクセス 福岡市七隈線 六本松駅  から 徒歩5分 専有面積 24.36m 2  ( 7.36坪 )
  • インターネット
  • トイレ・バス別
  • 洗髪洗面台
  • 室内洗濯機置き場
  • 追い焚き
  • フローリング
  • 2階以上
  • オートロック
  • システムキッチン・IH
  • リフォーム済み

[メールで簡単] この物件を問い合わせる

外観図

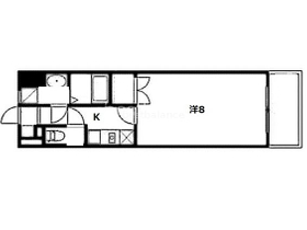
間取り図面

電話番号
092-852-3737
受付時間
09:00~18:00
問い合せ番号
2_7153

[メールで簡単] この物件を問い合わせる

  •  外観図
  •  その他の写真
  •  その他の写真
  •  その他の写真
  •  その他の写真
  •  その他の写真
  •  その他の写真
  •  その他の写真
  •  その他の写真
  •  その他の写真
  •  その他の写真
  •  その他の写真
  •  その他の写真
  •  その他の写真
  •  その他の写真
  •  その他の写真
  •  その他の写真
  •  その他の写真

担当者からコメント

このお部屋も仲介手数料0もしくは50%OFFだから、初期費用安くご入居できます!
仲介手数料を家賃一ヶ月も支払いますか?
そこに疑問を持たれたなら、お気軽にお問合せ下さいませ。

-----------☆

おかげさまでご紹介やリピーターが多く、福岡の賃貸物件年間紹介件数3,000件以上!
初期費用がどこよりも安く、お部屋の案内からカギ渡しまでの丁寧なフォローがご支持頂けています。

SUUMOやホームズ・アットホームなど他サイトでお部屋探しをするよりも、ベストバランスでは最大家賃一ヵ月分も初期費用が安くなります!

◎お持ちのVISA・JCB・マスターカード等で初期費用のお支払可!
◎管理会社からの請求以外で不要なオプションは請求いたしません!
◎他サイトに掲載中の物件も初期費用安くご紹介できます。
◎初期費用や空き状況のみのお問合せも大歓迎!


<LINEをご利用の方へ>
弊社はお客様とのやりとりは基本的に公式LINEを使用させて頂いておりますので、
もしよろしければご登録お願いいたします。
(営業が外出先でもチェックできるのでやりとりがスムーズ、
資料添付が可能、お客様のご都合の良い時に連絡ができるなどのメリットがあります)
・SUUMOやホームズなどで気になった物件のURLをお送り頂くこともできます。

登録方法は下記をご参照ください。
ご登録お待ちしております。
友だち追加
電話番号
092-852-3737
受付時間
09:00~18:00
問い合せ番号
2_7153

[メールで簡単] この物件を問い合わせる

物件詳細情報

基本

アクセス 福岡市七隈線 六本松駅  から 徒歩5分
福岡市七隈線 桜坂駅  から 徒歩15分
種別 アパート・マンション
所在地 福岡県福岡市中央区六本松4丁目 8-19 学校区 -

費用

賃料 6万円 管理・共益費 0円
礼金 1ヶ月 敷金・保証金 0ヶ月 ・ -
償却・敷引 - 雑費 -
家賃保証会社 - 保険料 -
契約期間 2年 更新料 -

建物

間取り 1K  専有面積 24.36m 2  ( 7.36坪 )
構造 鉄筋コンクリート造 バルコニー面積 -
所在階 / 階数 5階  / 9階建 完成年月 2005年01月 ( 築20年 )
管理 - 総戸数 -
駐車場 敷地内  ( 月額 10,500円 ) バイク置場 -
駐輪場 -
リフォーム - リノベーション -
設備・条件 敷金なし/都市ガス/即入居可/仲介手数料ゼロ/エレベーター/二階以上/閑静な住宅街/コンビニ近くに有/システムキッチン/ガスコンロ/バス・トイレ別/給湯/シャワー/洗面化粧台独立/室内洗濯機置場/洗濯機置場/温水洗浄便座/エアコン/収納スペース/CATV/CSアンテナ/BSアンテナ/光ファイバー/オートロック/宅配ボックス/TVドアホン付き/駐輪場有り/駐車場有り/バルコニー/フローリング/外観タイル貼り
【※仲介手数料が変動している場合もございますので、お問合せ下さい。】

その他

現況 ・ 入居 空室  ・  相談 取引態様 仲介
次回更新日 2025/02/12 QRコード

QRコードから物件情報を見ることが出来ます。読み取りにくい方はこちらからQRコードを拡大できます。

担当者 有村 崇

コンドミニアムヴェルジュ六本松への お問い合わせは株式会社BEST BALANCE  まで

株式会社BEST BALANCE  
〒814-0002福岡県福岡市早良区西新1丁目12-20

会社案内

印刷する

お電話・FAXでのお問い合せ
TEL:092-852-3737 FAX:092-852-3738
受付時間
09:00~18:00

物件の空き状況や、内見希望などお気軽にお問い合わせください

[メールで簡単] この物件を問い合わせる

こちらの物件もあります。

  • 福岡県福岡市西区姪の浜

    7万1000円

    1K / 35.17m²

    姪浜駅から徒歩 5分

    候補

  • 福岡県福岡市博多区博多駅前

    17万5000円

    1LDK / 48.95m²

    博多駅から徒歩 3分

    候補

  • 福岡県福岡市東区下原

    9万1000円

    2LDK / 66.24m²

    九産大前駅から徒歩 16分

    候補

  • 福岡県福岡市博多区御供所町

    4万9000円

    1K / 16.2m²

    祇園駅から徒歩 3分

    候補

  • 福岡県福岡市博多区千代

    4万7000円

    1K / 24.19m²

    千代県庁口駅から徒歩 1分

    候補

  • 福岡県福岡市早良区高取

    7万8000円

    1LDK / 31.05m²

    藤崎駅から徒歩 3分

    候補

  • 福岡県福岡市南区塩原

    9万5000円

    1R / 31.05m²

    大橋駅から徒歩 8分

    候補

  • 福岡県福岡市博多区中呉服町

    5万8000円

    1K / 24.63m²

    呉服町駅から徒歩 2分

    候補

  • 福岡県福岡市中央区平尾

    4万2000円

    1K / 26m²

    西鉄平尾駅から徒歩 4分

    候補

  • 福岡県福岡市博多区住吉

    8万円

    1LDK / 27.06m²

    博多駅から徒歩 13分

    候補

  • 福岡県福岡市博多区博多駅東

    7万7000円

    1K / 24.4m²

    博多駅から徒歩 9分

    候補

  • 福岡県福岡市中央区薬院

    6万4000円

    1R / 29.05m²

    薬院大通駅から徒歩 4分

    候補

  • 福岡県福岡市南区的場

    6万8000円

    1SLDK / 35.14m²

    井尻駅から徒歩 21分

    候補

  • 福岡県福岡市中央区小笹

    7万2000円

    1LDK / 34.87m²

    西鉄平尾駅から徒歩 23分

    候補

  • 福岡県福岡市中央区高砂

    9万4000円

    1LDK / 32.11m²

    渡辺通駅から徒歩 8分

    候補

最近見た物件 (1)