プレステージ高宮駅前 初期費用安くをモットーに 新築! 法人お部屋探し / 3階 1LDK 87,000円 36.08m2 新築 賃貸空室情報|仲介手数料無料!福岡で賃貸物件のお部屋探しならベストバランス

SUUMO・ホームズなどに掲載しているお部屋も初期費用安くご紹介可能です!お気軽にお問合せ下さいませ♪

  • 新築

登録・更新日:2026/01/14

 

プレステージ高宮駅前 初期費用安くをモットーに 新築! 

  • 敷金0
ベストバランスならアットホーム・SUUMOより最大家賃一ヵ月分も安く賃貸契約ができます。
賃料 8万7000円
管理・共益費
4,000円
敷金 ・ 礼金 0ヶ月  ・  1ヶ月 間取り 1LDK
主要アクセス 西鉄天神大牟田線 高宮駅  から 徒歩5分 専有面積 36.08m 2  ( 10.91坪 )
  • インターネット
  • トイレ・バス別
  • 洗髪洗面台
  • 室内洗濯機置き場
  • 追い焚き
  • フローリング
  • 2階以上
  • オートロック
  • システムキッチン・IH
  • リフォーム済み

[メールで簡単] この物件を問い合わせる

外観図

類似物件参照

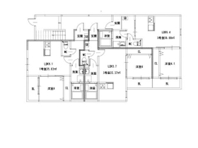
間取り図面

電話番号
092-852-3737
受付時間
09:00~18:00
問い合せ番号
2_91253

[メールで簡単] この物件を問い合わせる

  • 類似物件参照

担当者からコメント

このお部屋も仲介手数料0もしくは50%OFFだから、初期費用安くご入居できます!
仲介手数料を家賃一ヶ月も支払いますか?
そこに疑問を持たれたなら、お気軽にお問合せ下さいませ。

-----------☆

おかげさまでご紹介やリピーターが多く、福岡の賃貸物件年間紹介件数3,000件以上!
初期費用がどこよりも安く、お部屋の案内からカギ渡しまでの丁寧なフォローがご支持頂けています。

SUUMOやホームズ・アットホームなど他サイトでお部屋探しをするよりも、ベストバランスでは最大家賃一ヵ月分も初期費用が安くなります!

◎お持ちのVISA・JCB・マスターカード等で初期費用のお支払可!
◎管理会社からの請求以外で不要なオプションは請求いたしません!
◎他サイトに掲載中の物件も初期費用安くご紹介できます。
◎初期費用や空き状況のみのお問合せも大歓迎!


<LINEをご利用の方へ>
弊社はお客様とのやりとりは基本的に公式LINEを使用させて頂いておりますので、
もしよろしければご登録お願いいたします。
(営業が外出先でもチェックできるのでやりとりがスムーズ、
資料添付が可能、お客様のご都合の良い時に連絡ができるなどのメリットがあります)
・SUUMOやホームズなどで気になった物件のURLをお送り頂くこともできます。

登録方法は下記をご参照ください。
ご登録お待ちしております。
友だち追加
電話番号
092-852-3737
受付時間
09:00~18:00
問い合せ番号
2_91253

[メールで簡単] この物件を問い合わせる

物件詳細情報

基本

アクセス 西鉄天神大牟田線 高宮駅  から 徒歩5分
西鉄天神大牟田線 西鉄平尾駅  から 徒歩18分
西鉄天神大牟田線 大橋駅  から 徒歩19分
種別 アパート・マンション
所在地 福岡県福岡市南区玉川町4-17 学校区 -

費用

賃料 8万7000円 管理・共益費 4,000円
礼金 1ヶ月 敷金・保証金 0ヶ月 ・ -
償却・敷引 - 雑費 -
家賃保証会社 - 保険料 -
契約期間 - 更新料 -

建物

間取り 1LDK  専有面積 36.08m 2  ( 10.91坪 )
構造 木造 バルコニー面積 -
所在階 / 階数 3階  / 3階建 完成年月 2026年02月 ( 新築 )
管理 - 総戸数 -
駐車場 - バイク置場 -
駐輪場 -
リフォーム - リノベーション -
設備・条件 仲介手数料ゼロ/システムキッチン/バス・トイレ別/給湯/シャワー/洗面化粧台独立/室内洗濯機置場/洗濯機置場/エアコン/収納スペース/オートロック/TVドアホン付き/バルコニー/新築
【※仲介手数料は変動する場合もございますので、最新の情報はお問い合わせくださいませ】
入居時消毒代:1万7600円
室内クリーニング代:4万9500円
ネット初期設定代:5500円

24時間サポート:880円 / 月

その他

現況 ・ 入居 空室  ・  相談 取引態様 仲介
次回更新日 2026/04/14 QRコード

QRコードから物件情報を見ることが出来ます。読み取りにくい方はこちらからQRコードを拡大できます。

担当者 有村 崇

この建物の空室一覧

所在階 間取り 面積 賃料 管理費
共益費
敷金 礼金 物件詳細 お問い合せ
1階 1LDK 向き 36.08m² 8万5000円 4,000円 0 ヶ月 1 ヶ月

詳細を見る

問い合わせる

プレステージ高宮駅前 初期費用安くをモットーに 新築!への お問い合わせは株式会社BEST BALANCE  まで

株式会社BEST BALANCE  
〒814-0002福岡県福岡市早良区西新1丁目12-20

会社案内

印刷する

お電話・FAXでのお問い合せ
TEL:092-852-3737 FAX:092-852-3738
受付時間
09:00~18:00

物件の空き状況や、内見希望などお気軽にお問い合わせください

[メールで簡単] この物件を問い合わせる

こちらの物件もあります。

  • 福岡県福岡市博多区住吉

    17万6000円

    2LDK / 51.37m²

    渡辺通駅から徒歩 8分

    候補

  • 福岡県福岡市南区野間

    6万8000円

    1LDK / 30.24m²

    高宮駅から徒歩 10分

    候補

  • 福岡県福岡市東区多々良

    11万1000円

    3LDK / 67.28m²

    土井駅から徒歩 22分

    候補

  • 福岡県福岡市中央区高砂

    9万8000円

    1LDK / 34.8m²

    薬院駅から徒歩 6分

    候補

  • 福岡県福岡市東区和白

    8万2000円

    2LDK / 43.62m²

    和白駅から徒歩 6分

    候補

  • 福岡県福岡市西区石丸

    7万8000円

    2LDK / 42.61m²

    下山門駅から徒歩 22分

    候補

  • 福岡県福岡市東区三苫

    9万円

    2LDK / 64.59m²

    三苫駅から徒歩 7分

    候補

  • 福岡県福岡市東区馬出

    6万2000円

    1LDK / 31.11m²

    箱崎宮前駅から徒歩 4分

    候補

  • 福岡県福岡市中央区渡辺通

    9万2000円

    1LDK / 43.78m²

    渡辺通駅から徒歩 5分

    候補

  • 福岡県福岡市東区唐原

    6万1000円

    1LDK / 34.15m²

    九産大前駅から徒歩 6分

    候補

  • 福岡県福岡市西区徳永

    10万4000円

    2LDK / 64.65m²

    九大学研都市駅から徒歩 5分

    候補

  • 福岡県福岡市博多区築港本町

    9万円

    1K / 25.85m²

    中洲川端駅から徒歩 13分

    候補

  • 福岡県福岡市城南区長尾

    5万2000円

    1LDK / 43.74m²

    茶山駅から徒歩 20分

    候補

  • 福岡県福岡市東区和白

    5万9000円

    1LDK / 35.08m²

    和白駅から徒歩 8分

    候補

  • 福岡県福岡市東区下原

    9万1000円

    2LDK / 66.24m²

    九産大前駅から徒歩 16分

    候補

最近見た物件 (1)